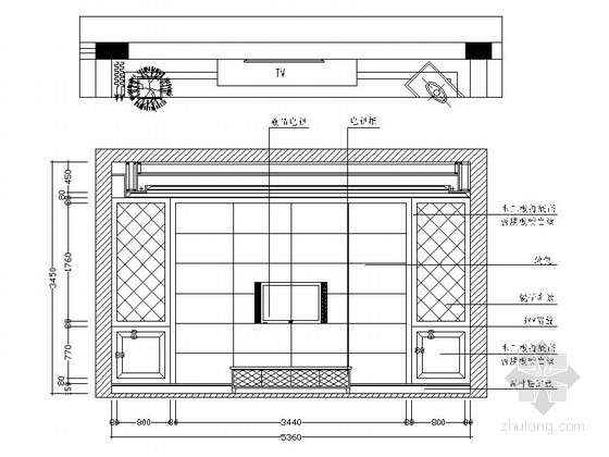
客廳立面圖,豎廳客廳裝修效果圖
原始結構圖,原始結構尺寸圖,墻體拆除圖,墻體增建圖,平面布局圖,水路圖,開關插座布局圖,電路圖,客餐廳吊頂圖,電視墻造型圖,客廳地面鋪裝圖,臥室地面鋪裝圖,衣柜立面圖,廚房地面鋪裝圖,廚房吊頂圖,廁所地面鋪裝圖;首先要識別各種家具和設施的符號,它們在平面圖中占了相當大的比例而沒有統一的標識,但一般畫的都很直觀看懂這些符號,弄清了擺放位置和方向后,就要檢查各種家具及設施是否使用方便,安排的是否得當比如看客廳,先要找到。
01 首先我們畫出房屋的整體結構圖,如圖所示02 在整體結構圖上畫出客廳內的家居圖形,如圖所示03 再在整體架構上畫出餐廳的桌椅圖形,如圖所示04 在畫出次臥室內的床鋪和床頭柜的圖形,如圖所示05 再畫出廁所內的;所以說,沒有經過設計的裝修是不會成功的合格的裝修設計首先應該是完整的,其中包括1設計總說明2總平面圖大的公寓別墅要有分區域或各居室平面圖3各部位立面圖及剖面圖4節點大樣圖5固定家具制作圖。

為了方便看懂立面圖,即立面圖中客廳A立面,客廳立面等中的ABCD是根據索引圖中所標的對應同時CAD具有良好的用戶界面,通過交互菜單或命令行方式便可以進行各種操作它的多文檔設計環境,讓非計算機專業人員也能很快地;客廳是四個面,設計師劃分為A,B,C,D,面你看看平面圖A是指哪個面,然后立面就是它。
立體圖就是效果圖的意思,你說的立面圖是寫零的那張,就是一個面的意思,可以給你放一個立體效果和一個立面摻考看看吧。
歐式客廳效果圖
3給水走向圖 給水走向圖是關于廚房衛生間等處的給排水線路的布置圖給水管道的管徑尺寸取水位置及高度管線排布系統等是該圖的重點在水路施工中要十分注重,要以此圖為基礎4立面圖局部放大圖和節點詳圖 立。
注本套教程共3節,分別包括客廳平面圖的繪制1客廳立面圖A的繪制2客廳立面圖B的繪制3請注意下載完整主要知識點1繪制客廳平面圖的標注2繪制索引符號簡要操作步驟第一步打開整體室內平面。
施工圖紙通常以便于施工隊施工為目的 一套完整的室內設計圖紙通常會含原始圖,拆墻圖,砌墻圖,設計圖,水暖電圖,燈具圖,吊頂圖,鋪地圖,主要柜體家具圖,立面圖,詳細節點大樣圖等對于重點圖紙需要標明材質,顏色及。
回答補充差不多是你說的那樣 在建筑物外立面圖上,是正常的正投影繪制在房間墻的立面圖上,也是正常的正投影繪制如果需要制做這個弧形窗,采用立面展開的繪制方法繪制還要附上平面圖平剖面。
開間14米,進深11米,占地面積14791平方米,建筑面積27948平方米圖紙目錄建筑設計總說明室內裝修及做法表一層平面圖二層平面圖屋頂平面圖正立面圖背立面圖左立面圖右立面圖11剖面圖。
豎廳客廳裝修效果圖
2平面方案圖要有備選方案3天花布局圖 4地面布局圖 5給排水系統 6電力及多媒體分布圖隱蔽工程維修備用圖,中央空調方案,音響,安防控制7墻體土建工程圖哪些地方拆了,哪些地方砌了8施工立面圖客。
是一樣的,平面,立面,剖面都是表現該物體不同尺寸。

不用啊,建筑立面,就是層高的一個標高就好了,如果是錯層的,那就在最近測標注高度,標在建筑的兩側而不是建筑立面上。
就建筑圖來說,主要由設計總說明門窗表匯總圖樓地面墻面吊頂屋面做法匯總圖平面圖立面圖剖面圖節點詳圖,一般先看平面圖,平面圖中會標注出很多節點索引及剖面索引,你可以根據索引去看相應的剖面圖和節點詳圖,立面圖主要表示立。
免責聲明: 本站提供的任何內容版權均屬于相關版權人和權利人,如有侵犯你的版權。 請來信指出,我們將于第一時間刪除! 所有資源均由免費公共網絡整理而來,僅供學習和研究使用。請勿公開發表或 用于商業用途和盈利用途。
本文鏈接:http://www.whxzws.com/ziyuan/11557.html
發表評論